当前位置: 首页 > 别墅图纸
层    数
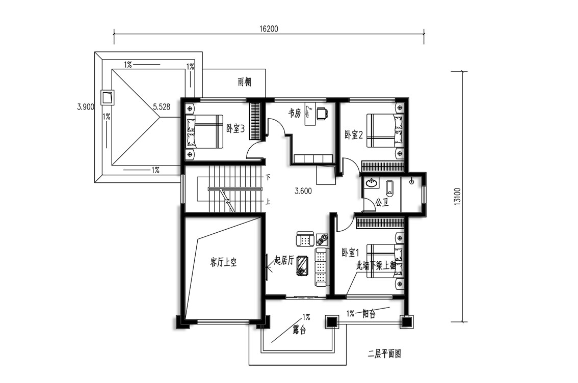
二层别墅
结构形式
砖混结构
建筑风格
新中式风格
开    间
16.2m
占地面积
168.19㎡
建筑面积
362.28㎡
进    深
13.1m
主体造价
55-60w (仅供参考)
制作软件
cad
图纸内容
建筑图
建筑设计说明,构造表,平面图,  屋顶平面图,立面图,剖面图,节点大样图,楼梯大样图,门窗大样图,门窗表
结构图
结构设计说明,基础平面布置图,基础大样图,基础施工图,结构施工图,楼梯大样图
给排水图
给排水设计说明,给排水平面图,给排水系统原理图,卫生间给排水详图,化粪池大样图,污水检查井大样图
电气图
电气设计说明,主要设备及材料表,配电箱系统图,弱电系统图,基础接地平面图,屋面防雷平面图,照明平面图,插座平面图,弱电平面图


图纸展示
  • 建筑效果图

    平面方案图

    建筑立面图


二层新中式别墅图纸
图纸编号:20206t
图纸价格:¥1180元
支付方式:支付宝付款银行转账
承诺支持:全国免费包邮货到付款

请您在下订单前与在线客服确认配送范围。

您在本站订购的图纸,我们客服人员会电话与您联系确认图纸编号、收货信息等, 感谢您对本站的关注,祝您网上购物愉快!

购图前重要说明:

购买本套图纸仅提供打印好的图纸一份,我们不出售电子文件、光盘。我们设计的图纸非常详细,用A3规格打印图纸,比传统蓝图更清晰、容易复印、方便收藏,可以直接应用到施工现场。售后服务仅为图纸答疑,不包任何修改,因为只要其中一张图纸改变,其它图纸相应均需修改,工作量较大,所以我们不包修改。如果您个性要求较多需按要求订做设计,请查看别墅设计业务流程,并联系设计客服咨询设计收费标准。

快速导航